

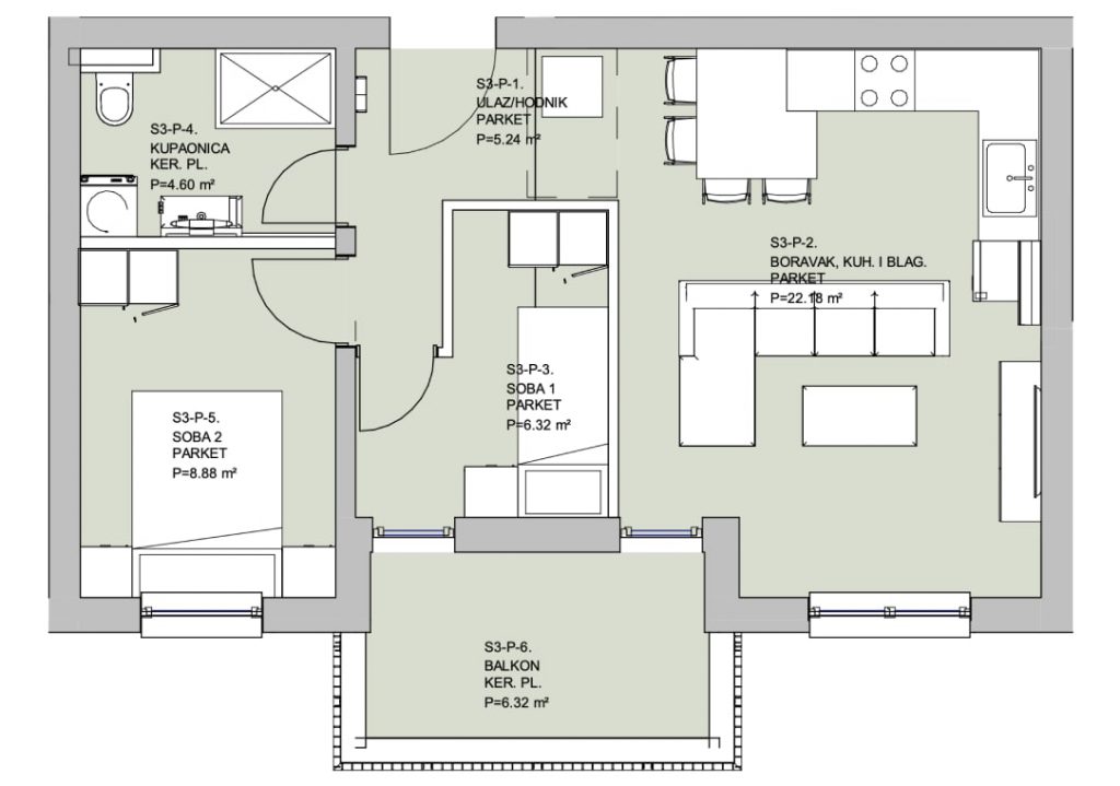
Ovaj stan sastoji se od 2 spavaće sobe, odvojenog dnevnog boravka i balkona.
| Oznaka | Naziv površine | Površina | KI | Neto površina |
| S3-P-1 | Ulaz / hodnik | 5.24 m² | 1 | 5.24 m² |
| S3-P-2 | Boravak, kuhinja i blagovaonica | 22.18 m² | 1 | 22.18 m² |
| S3-P-3 | Soba 1 | 6.32 m² | 1 | 6.32 m² |
| S3-P-4 | Kupaonica | 4.60 m² | 1 | 4.60 m² |
| S3-P-5 | Soba 2 | 8.88 m² | 1 | 8.88 m² |
| S3-P-6 | Balkon | 6.32 m² | 0.25 | 1.58 m² |
| 53.54 m² | 48.80 m² |
| Kolačić | Trajanje | Opis |
|---|---|---|
| vuid | 2 godine | Vimeo instalira ovaj kolačić za praćenje statistika videa koji su uključeni na stranici. |
| Kolačić | Trajanje | Opis |
|---|---|---|
| cookielawinfo-checkbox-analytics | 11 mjeseci | Kolačić postavljen od strane GDPR Cookie Consent dodatka. Kolačić se koristi za spremanje korisnikove privole za kolačiće iz kategorije "Analitički". |
| cookielawinfo-checkbox-necessary | 11 mjeseci | Kolačić postavljen od strane GDPR Cookie Consent dodatka. Kolačić se koristi za spremanje korisnikove privole za kolačiće iz kategorije "Obavezni". |
| elementor | nikad | Kolačić kojeg korsti WordPress tema ove stranice i omogućuje vlasniku stranice jednostavnije održavanje sadržaja. |
| viewed_cookie_policy | 11 mjeseci | Kolačić postavljen od strane GDPR Cookie Consent dodatka. Kolačić se koristi za spremanje korisnikove privole za korištenje kolačića. Ne sprema nikakve osobne podatke. |