Projekt VL 620
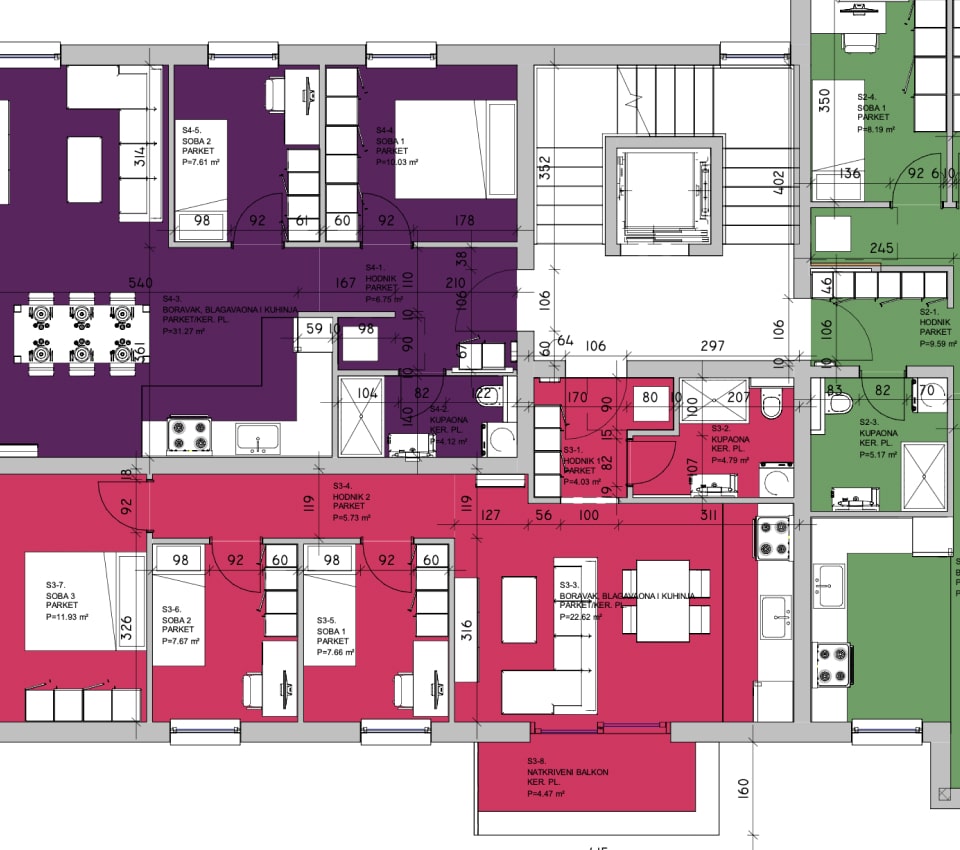
Moderna novogradnja sastoji se od 8 stanova različitih veličina. Stanove krasi odličan raspored bez nepotrebno potrošenih kvadrata. Stanovi u prizemlju dolaze s velikim vrtom, dok svi ostali stanovi posjeduju balkon ili terasu.
Zgrada sadrži 2 natkrivena i 8 nenatkrivenih parkirnih mjesta.








