

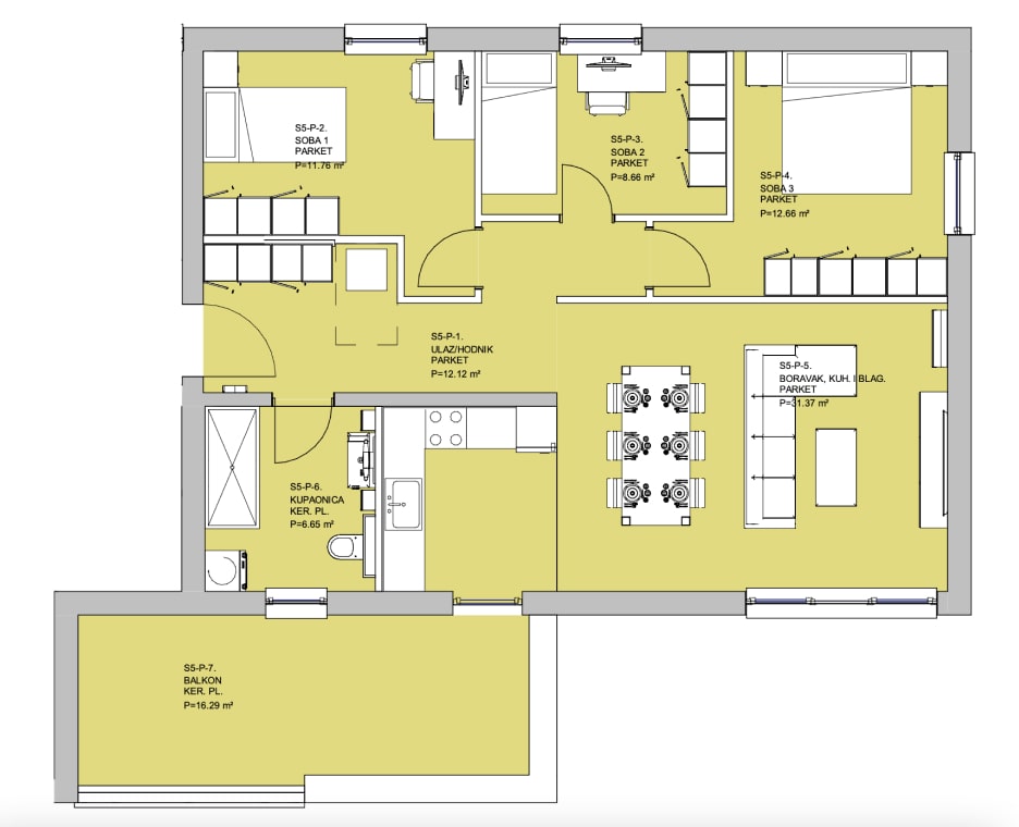
Prostrani stan sastoji se od 3 spavaće sobe, odvojenog dnevnog boravka i balkona.
| Oznaka | Naziv površine | Površina | KI | Neto površina |
| S5-P-1 | Ulaz / hodnik | 12.12 m² | 1 | 12.12 m² |
| S5-P-2 | Soba 1 | 11.76 m² | 1 | 11.76 m² |
| S5-P-3 | Soba 2 | 8.66 m² | 1 | 8.66 m² |
| S5-P-4 | Soba 3 | 12.66 m² | 1 | 12.66 m² |
| S5-P-5 | Boravak, kuhinja i blagavaonica | 31.37 m² | 1 | 31.37 m² |
| S5-P-6 | Kupaonica | 6.65 m² | 1 | 6.65 m² |
| S5-P-7 | Balkon | 16.29 m² | 0.5 | 8.14 m² |
| 99.52 m² | 91.37 m² |
| Kolačić | Trajanje | Opis |
|---|---|---|
| vuid | 2 godine | Vimeo instalira ovaj kolačić za praćenje statistika videa koji su uključeni na stranici. |
| Kolačić | Trajanje | Opis |
|---|---|---|
| cookielawinfo-checkbox-analytics | 11 mjeseci | Kolačić postavljen od strane GDPR Cookie Consent dodatka. Kolačić se koristi za spremanje korisnikove privole za kolačiće iz kategorije "Analitički". |
| cookielawinfo-checkbox-necessary | 11 mjeseci | Kolačić postavljen od strane GDPR Cookie Consent dodatka. Kolačić se koristi za spremanje korisnikove privole za kolačiće iz kategorije "Obavezni". |
| elementor | nikad | Kolačić kojeg korsti WordPress tema ove stranice i omogućuje vlasniku stranice jednostavnije održavanje sadržaja. |
| viewed_cookie_policy | 11 mjeseci | Kolačić postavljen od strane GDPR Cookie Consent dodatka. Kolačić se koristi za spremanje korisnikove privole za korištenje kolačića. Ne sprema nikakve osobne podatke. |