

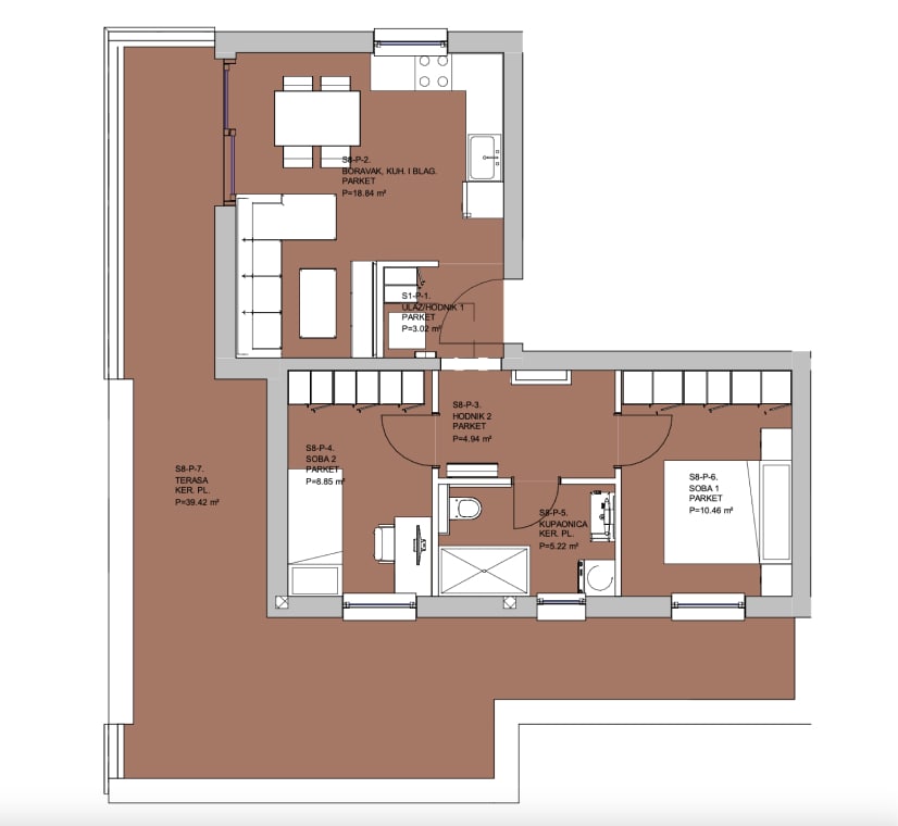
Prostrani stan sastoji se od 2 spavaće sobe, odvojenog dnevnog boravka i terase.
| Oznaka | Naziv površine | Površina | KI | Neto površina |
| S8-P-1 | Ulaz / hodnik 1 | 3.02 m² | 1 | 3.02 m² |
| S8-P-2 | Boravak, kuhinja i blagovaonica | 18.84 m² | 1 | 18.84 m² |
| S8-P-3 | Hodnik 2 | 4.94 m² | 1 | 4.94 m² |
| S8-P-4 | Soba 2 | 8.85 m² | 1 | 8.85 m² |
| S8-P-5 | Kupaonica | 5.22 m² | 1 | 5.22 m² |
| S8-P-6 | Soba 1 | 10.46 m² | 1 | 10.46 m² |
| S8-P-7 | Terasa | 39.42 m² | 0.25 | 9.85 m² |
| 90.75 m² | 61.19 m² |
| Kolačić | Trajanje | Opis |
|---|---|---|
| vuid | 2 godine | Vimeo instalira ovaj kolačić za praćenje statistika videa koji su uključeni na stranici. |
| Kolačić | Trajanje | Opis |
|---|---|---|
| cookielawinfo-checkbox-analytics | 11 mjeseci | Kolačić postavljen od strane GDPR Cookie Consent dodatka. Kolačić se koristi za spremanje korisnikove privole za kolačiće iz kategorije "Analitički". |
| cookielawinfo-checkbox-necessary | 11 mjeseci | Kolačić postavljen od strane GDPR Cookie Consent dodatka. Kolačić se koristi za spremanje korisnikove privole za kolačiće iz kategorije "Obavezni". |
| elementor | nikad | Kolačić kojeg korsti WordPress tema ove stranice i omogućuje vlasniku stranice jednostavnije održavanje sadržaja. |
| viewed_cookie_policy | 11 mjeseci | Kolačić postavljen od strane GDPR Cookie Consent dodatka. Kolačić se koristi za spremanje korisnikove privole za korištenje kolačića. Ne sprema nikakve osobne podatke. |