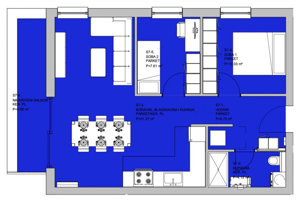
Zgrada 620 – stan 7